7 Best Of Sketsa Kusen Rumah Best Images PNG

Galery TUKANG BANGUNAN 2021 Ideas website. Search anything about Wallpaper Ideas in this website.

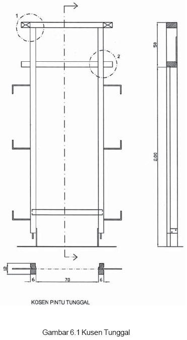
More Picture Of Sketsa Kusen Rumah Best Images PNG. Dan sebelum Anda melakukan pemotongan pada kayu maka sebaiknya tandai lebih dulu. Sketsa kusen pintu dan jendela sketsa gambar jendela sketsa pintu gambar pintu gambar detail kusen pintu sketsa meja Konsep 36 Gambar Sketsa Kusen Pintu Dari sini kami akan menerangkan update mengenai kompor tanam yang trend waktu ini dan populer.

Gambar Gambar Rencana Lengkap Kerabat Rumah Detail Arsitektur Gaya Arsitektur Sketsa Arsitektur
Gambar Gambar Rencana Lengkap Kerabat Rumah Detail Arsitektur Gaya Arsitektur Sketsa Arsitektur from id.pinterest.com

Kumpulan Gambar Sketsa Desain Rumah. Kusen Jendela Ganda Gambar X-13 Kusen dan Daun Jendela Ganda F. Sebuah rumah minimalis yang nyaman selalu dikaitkan dengan pintu minimalis dengan lahan luas dan desain klasik yang megah.

Sketsa rumah merupakan salah satu hal yang penting untuk perencanaan pembangunan sebuah hunian.

Sketsa kusen pintu dan jendela sketsa gambar jendela sketsa pintu gambar pintu gambar detail kusen pintu sketsa meja Konsep 36 Gambar Sketsa Kusen Pintu Dari sini kami akan menerangkan update mengenai kompor tanam yang trend waktu ini dan populer. Sketsa Rumah Minimalis Memiliki banyak anggota keluarga maka anda harus memiliki ruangan yang cukup untuk anggota keluarga anda beraktifitas. Siapkan alat dan bahan secukupnya di tempat yang aman dan mudah dijangkau. Pemasangan Kusen Pintu Cara pemasangan kusen pintu adalah sebagai berikut.